Foram encontradas 50 questões.
Acerca do uso de ferramentas computacionais no projeto arquitetônico, especificamente AutoCAD, julgue o item abaixo.
A posição de início e de fim de uma linha pode ser definida de várias formas, tais como por um clique com o cursor na tela, pela digitação de coordenadas absolutas, de coordenadas relativas ou de coordenadas polares.
Provas
Julgue o item que se segue referente a projeto arquitetônico.
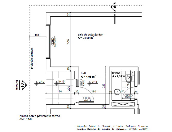
Na planta-baixa reproduzida na figura a seguir, o retângulo cruzado por duas diagonais na área do lavabo indica um espaço livre para um armário de embutir.

Provas
O desenho abaixo representa as curvas de nível de uma elevação de terreno onde a região A tem inclinação mais acentuada que a região C.

Provas
De acordo com as normas e convenções estabelecidas em desenho técnico, julgue o item seguinte.
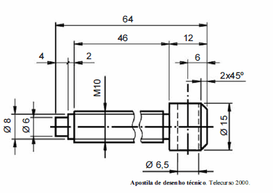
O desenho a seguir mostra uma vista de uma peça de seção cilíndrica variável, na qual as duas linhas de ondulação paralela indicam a existência de encaixe entre duas partes no corpo cilíndrico de diâmetro igual a 10 unidades.

Provas
Tendo em vista os desenhos de arquitetura, julgue os itens a seguir.
No detalhe da figura a seguir, a seta vertical cortada por um traço horizontal indica a cota de nível do pavimento, em que o nível acabado é igual a +34,25 centímetros.

Provas
Tendo em vista os desenhos de arquitetura, julgue os itens a seguir.
Os detalhes executivos são desenhos normalmente elaborados nas escalas 1:10, 1:5 ou 1:2 e servem para deixar claro a forma de concepção e(ou) execução de partes de uma obra.
Provas
Tendo em vista os desenhos de arquitetura, julgue os itens a seguir.
Os desenhos de cortes devem incluir tanto as cotas verticais (de altura), quanto as medidas horizontais da edificação.
Provas
Tendo em vista os desenhos de arquitetura, julgue os itens a seguir.
Considerando que a planta de localização a seguir tenha sido desenhada na escala de 1:100, é correto afirmar que o lote número 636 tem forma de um retângulo de dimensões 110 m na testada e 330 m de profundidade.´

Provas
Tendo em vista os desenhos de arquitetura, julgue os itens a seguir.
As várias plantas de arquitetura, os detalhes e outros elementos pertinentes devem ser desenhados em folhas de tamanho adequado, mantendo, na parte inferior direita, espaço reservado chamado carimbo, que contém a legenda com informações do projeto. O dobramento final da folha de desenho é feito de tal forma que o carimbo, as margens e a aba de fixação em pastas resultem em um formato A4.
Provas

Considerando a planta de formas na figura acima, julgue os itens que se seguem.
O volume de concreto a ser utilizado no enchimento das vigas e lajes é igual a 6,07 m 3 .
Provas
Caderno Container