Magna Concursos

Foram encontradas 509 questões.

992222 Ano: 2012
Disciplina: Arquitetura
Banca: IADES
Orgão: EBSERH
Provas:

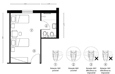
Enunciado 992222-1

Considerando o conforto ergonômico na circulação pelo ambiente, ilustrado acima (*), assinale a alternativa que apresenta a associação correta entre as posições X, Y e Z no espaço e as rotações 1, 2, 3 e 4 indicadas para um cadeirante. (ver imagem ampliada na página 16)

(*) Fonte: Ilustração composta para a questão, construída a partir da inspiração da Revista Brasileira de Ergonomia, v.7, n.3.

 

Provas

Questão presente nas seguintes provas
992221 Ano: 2012
Disciplina: Arquitetura
Banca: IADES
Orgão: EBSERH
Provas:
A crescente adoção de tecnologias BIM pelos profissionais de arquitetura e urbanismo requer a atualização de muitos profissionais. BIM é, na realidade, um processo e não um produto. É comum que os produtos BIM sejam desenvolvidos com o uso de muitos programas, de várias empresas, e dificilmente um processo BIM será desenvolvido por um único software. Sobre BIM, assinale a alternativa correta.
 

Provas

Questão presente nas seguintes provas
992220 Ano: 2012
Disciplina: Arquitetura
Banca: IADES
Orgão: EBSERH
Provas:

Enunciado 992220-1

A ilustração acima representa o corte de duas vigas e uma laje pavimentada com piso cerâmico. Sobre esse contexto, assinale a alternativa correta

 

Provas

Questão presente nas seguintes provas
992219 Ano: 2012
Disciplina: Arquitetura
Banca: IADES
Orgão: EBSERH
Provas:
Pode-se dizer que os tributos são quaisquer pagamentos previstos em lei que não representem uma punição por ato ilícito. Segundo Mozart Bezerra da Silva (2006), os impostos podem ser tratados como custo direto, despesa administrativa e despesa tributária. Considerando os impostos de uma obra gerida por uma empresa (pessoa jurídica), qual dos tributos abaixo é claramente uma despesa administrativa?
 

Provas

Questão presente nas seguintes provas
992218 Ano: 2012
Disciplina: Arquitetura
Banca: IADES
Orgão: EBSERH
Provas:
Quando há diferença de temperatura entre duas regiões do espaço, esta tende a ser eliminada pela passagem espontânea de calor de uma região para a outra. Ao conjunto dos fenômenos responsáveis por essa passagem dá-se o nome de transmissão de calor. Estes fenômenos podem se manifestar de três formas distintas: condução, convecção e radiação. Assinale a alternativa correta sobre as formas de transmissão de calor.
 

Provas

Questão presente nas seguintes provas
992217 Ano: 2012
Disciplina: Arquitetura
Banca: IADES
Orgão: EBSERH
Provas:
É recomendável que uma mesa seja adequada a um desenho universal. Assinale a alternativa que apresenta a altura livre e a superfície de trabalho, respectivamente, de uma mesa com dimensões apropriadas a uma pessoa sentada, em uma cadeira comum, ao mesmo tempo em que atenda às recomendações da NBR 9050, oferecendo acessibilidade e conforto ergonômico a uma pessoa em cadeira de rodas.
 

Provas

Questão presente nas seguintes provas
992216 Ano: 2012
Disciplina: Arquitetura
Banca: IADES
Orgão: EBSERH
Provas:
Considerando o conforto ergonômico para uma bacia sanitária, incluindo a altura do assento, assinale a alternativa que apresenta a sua altura máxima em um banheiro preparado para qualquer usuário.
 

Provas

Questão presente nas seguintes provas
992215 Ano: 2012
Disciplina: Arquitetura
Banca: IADES
Orgão: EBSERH
Provas:
O vidro é um produto homogêneo, obtido por meio de resfriamento de massa inorgânica em fusão. Em temperatura ambiente, como é encontrado usualmente, é frágil e pode ser transparente, translúcido ou opaco (com aplicação de determinadas películas). É um material versátil, encontrado em diversas situações, em construções. Com base nisto e em relação aos tipos de vidro, assinale a alternativa correta.
 

Provas

Questão presente nas seguintes provas
992214 Ano: 2012
Disciplina: Arquitetura
Banca: IADES
Orgão: EBSERH
Provas:
O AutoCAD é um programa de desenho assistido por computador comercializado desde 1982. É utilizado, principalmente, para elaboração de desenho técnico em 2D e para modelagem tridimensional. Sobre seu uso na área de informática aplicada à arquitetura, assinale a alternativa correta.
 

Provas

Questão presente nas seguintes provas
992213 Ano: 2012
Disciplina: Arquitetura
Banca: IADES
Orgão: EBSERH
Provas:
Com relação aos conceitos de topografia relacionados à arquitetura e à tecnologia atual de medição de terrenos e edificações, assinale a alternativa correta.
 

Provas

Questão presente nas seguintes provas