Foram encontradas 300 questões.
- Instalações ElétricasEquipamentos em Baixa Tensão
- Instalações ElétricasEquipamentos em Média Tensão
- Sistemas Elétricos de PotênciaDistribuição de Energia Elétrica
É correto afirmar que a vantagem da ligação de um banco de capacitores em triângulo é a seguinte:
Provas
Questão presente nas seguintes provas
Graute é uma argamassa
Provas
Questão presente nas seguintes provas
Em canteiro de obras, devem-se armazenar
Provas
Questão presente nas seguintes provas
Quando se deseja verificar a sanidade dos agregados, um dos ensaios a ser solicitado é o de determinação
Provas
Questão presente nas seguintes provas

Ela representa a vista em planta de uma edificação. Considerando o traçado tradicional de um telhado, com águas caindo em direção a todas as fachadas, o telhado terá
Provas
Questão presente nas seguintes provas
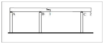
Considere a figura.

Ela representa uma viga com três apoios sobre colunas (A, B, C), um apoio tipo Gerber (1) e um balanço (2). Sobre essa viga, atua uma carga distribuída uniforme. O gráfico genérico de momentos fletores que corresponde a essa estrutura está representado na alternativa

Ela representa uma viga com três apoios sobre colunas (A, B, C), um apoio tipo Gerber (1) e um balanço (2). Sobre essa viga, atua uma carga distribuída uniforme. O gráfico genérico de momentos fletores que corresponde a essa estrutura está representado na alternativa
Provas
Questão presente nas seguintes provas
Segundo a NBR 7.480, as barras e os fios devem ser fornecidos com
Provas
Questão presente nas seguintes provas
Ao solicitar uma laje treliçada pré-fabricada, para um vão de 8 m, um engenheiro especificou que ela seria bi-apoiada. No entanto, na obra, as vigotas dessa laje tiveram suas extremidades engastadas em duas vigas invertidas. Isso pode
Provas
Questão presente nas seguintes provas
Os buzinotes são instalados em muros de arrimo para
Provas
Questão presente nas seguintes provas
Ao se projetar uma parede de alvenaria de vedação, devem ser previsto(a)s
Provas
Questão presente nas seguintes provas
Cadernos
Caderno Container