Foram encontradas 40 questões.
Assinale a alternativa que apresenta o nome da estaca moldada in loco e executada pela cravação por meio de sucessivos golpes de um pilão e de um tubo de ponta fechada por uma bucha seca constituída de pedra e areia previamente firmada na extremidade inferior do tubo por atrito.
Provas
Questão presente nas seguintes provas
- Sistemas e Processos Construtivos
- Instalações em Edificações
- Aspectos Legais e Burocráticos em Edificações

Recentemente, em novembro de 2014, a Associação Brasileira de Normas Técnicas cancelou a NBR 5444/1989, que definia os símbolos gráficos para projetos de instalação elétrica, sem indicar uma nova norma que a substitua. Contudo, durante o período de 25 anos em que essa última atualização da norma vigorou, centenas de milhares de projetos foram executados, utilizando-a como referência. A figura mostra elementos típicos de um projeto executado nesse período. A partir da interpretação dos símbolos mostrados no desenho, é correto afirmar que
Provas
Questão presente nas seguintes provas
As fundações são destinadas a transmitir ao terreno as cargas da estrutura. As estacas pré-moldadas podem ser de madeira, concreto ou metal. Faz(em) parte do procedimento de execução das estacas metálicas o(a)
Provas
Questão presente nas seguintes provas
Antes de iniciar o planejamento de uma construção, é imprescindível para o projetista conhecer as dimensões e as condições do terreno onde ela será alocada. Tais informações devem constar no levantamento planialtimétrico. Além da área e do perímetro do imóvel, a planta também deve conter o(a)
Provas
Questão presente nas seguintes provas

Observando o trecho de um projeto de instalações elétricas representado pela figura, assinale a alternativa que apresenta uma das simbologias utilizadas.
Provas
Questão presente nas seguintes provas

Desprezando-se os vãos e considerando o pé direito de 2,80 m, a quantidade de azulejos utilizada nas paredes das áreas molhadas (cozinha e banheiro) totaliza, aproximadamente,
Provas
Questão presente nas seguintes provas
Cada peça gráfica de um projeto de arquitetura possui especificidades de representação. Considerando essa informação, assinale a alternativa correta.
Provas
Questão presente nas seguintes provas
- Sistemas e Processos Construtivos
- Instalações em Edificações
- Estruturas nos Sistemas e Processos Construtivos
Um sistema de drenagem envolve um conjunto de dispositivos construídos com a finalidade de desviar a água de uma dada estrutura. Considerando essa informação, assinale a alternativa que apresenta um material drenante.
Provas
Questão presente nas seguintes provas
Em uma obra, cada oficial especializado deve trabalhar com as ferramentas e os respectivos equipamentos de proteção individual e coletiva. Com base nessa informação, alicate universal, alicate de bico fino, jogo de chaves de fenda, verruma, trena de aço de 5 m, nível de bolha de madeira, colher de pedreiro pequena e canivete são ferramentas de propriedade do
Provas
Questão presente nas seguintes provas
- Sistemas e Processos Construtivos
- Materiais de construção em Edificações
- Estudos Preliminares
- Estruturas nos Sistemas e Processos Construtivos
- Desenho Técnico em Edificações

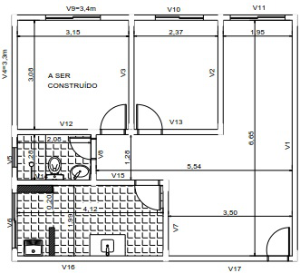
O proprietário dessa residência deixou para construir um dos quartos após a conclusão da obra. Dada a seção transversal de todas as vigas baldrame 12 x 30 cm, o volume total de concreto a ser utilizado nas vigas baldrame V4 e V9 será de, aproximadamente,
Provas
Questão presente nas seguintes provas
Cadernos
Caderno Container