Foram encontradas 135 questões.
Conforme a NBR 6118/2014, a agressividade do meio ambiente está relacionada às ações físicas e químicas que atuam sobre as estruturas de concreto, independentemente das ações mecânicas, das variações volumétricas de origem térmica, da retração hidráulica e outras previstas no dimensionamento das estruturas. Essa norma relaciona o risco de deterioração da estrutura ao tipo de ambiente e à agressividade ambiental.
Estruturas correntes em ambiente industrial e marinho, com classe de agressividade ambiental III - forte, apresentarão risco de deterioração, respectivamente:
Provas
Considere os seguintes blocos isolados com suas respectivas medidas da base em metros:

NÃO estão em conformidade com a NBR 6122 ABNT 2010 (projeto e execução de fundações), pelo critério da dimensão mínima, as sapatas:
Provas
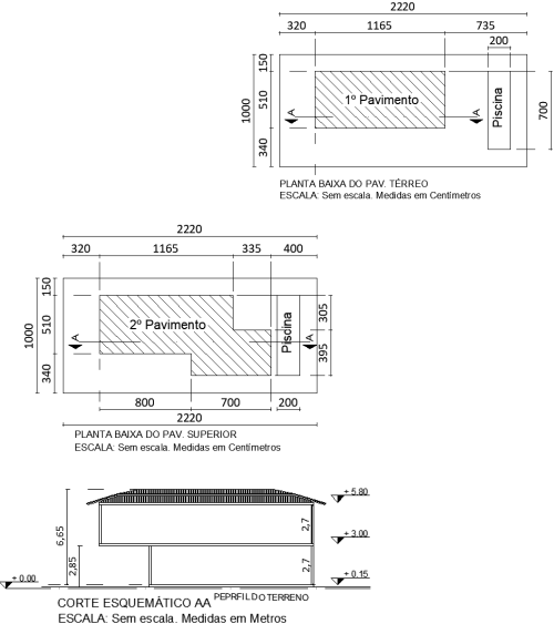
Observe as imagens a seguir para responder a questão. As plantas se referem a uma edificação a ser construída no município de Itabira/MG.

Provas
Provas
- Instalações em Engenharia CivilInstalações Hidrosanitárias
- Instalações em Engenharia CivilInstalações Pluviais
Provas
Leia o texto a seguir:
“ ...se ocupa dos processos de medida e especificação para o levantamento e representação cartográfica de uma grande extensão da superfície terrestre de um estado ou de um pais, projetada numa superfície de referência, geométrica e analiticamente definida por parâmetros, variáveis em número, de acordo com a consideração sobre a forma da Terra. ”
Fonte: ESPARTEL, L. Curso de topografia. 9ª ed. Rio de Janeiro: Globo, 1987 (adaptado).
Assinale a alternativa que apresenta o nome CORRETO da ciência conceituada no texto transcrito.
Provas
Observe as imagens a seguir para responder a questão. As plantas se referem a uma edificação a ser construída no município de Itabira/MG.

Provas
São considerados objetivos dos papéis de trabalho de auditoria, EXCETO:
Provas

Provas
Provas
Caderno Container