Foram encontradas 50 questões.
Os elementos e dispositivos hidrossanitários, representados pelas letras A, B, C e D da figura são, respectivamente,

Provas
O ponto do telhado é a altura da cumeeira, ou seja, é o ponto mais alto do telhado. Observe.

Com base na figura que apresenta um vão de 7 m e inclinação de 30% para a telha ser utilizada, o ponto do telhado é
Provas
tecnologia pode conferir ao projetista e ao construtor concretos para as mais diversas aplicações e finalidades. Diante do exposto, marque a alternativa correta.
Provas
No projeto arquitetônico, a linha tracejada, conforme imagem, na planta baixa, é utilizada para a representação de elementos
![]()
Provas
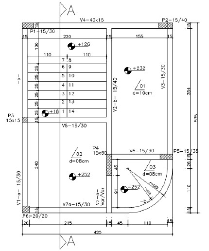
Os projetos de estrutura possuem, além das dimensões do elemento estrutural, a distribuição da armadura de aço no interior da peça. Observe.

Acerca da viga 3, é correto afirmar que
Provas
Acerca dos tipos de contrato de construção, assinale a afirmativa INCORRETA.
Provas
Os desenhos para execução das formas devem conter plantas, cortes e elevações de todas as peças da estrutura, necessários ao perfeito conhecimento de suas formas, dimensões e níveis. Observe.

No que refere à planta apresentada anteriormente, assinale a alternativa correta.
Provas
Nas figuras estão representadas as esquadrias J1, J2, J3, J4 e J5 com diferentes tipos de aberturas.

Assinale a alternativa que apresenta, respectivamente, os nomes dos tipos e aberturas das janelas J1, J2, J3, J4 e J5.
Provas
As formas para concreto armado devem satisfazer aos seguintes requisitos de ordem geral, EXCETO:
Provas
Enquanto a produção representa a quantidade de unidades feitas num certo intervalo de tempo, normalmente em horas, a produtividade é a rapidez com que essa produção foi atingida. Se Cosme assenta 800 tijolos em 8 horas e Damião assenta os 800 tijolos em 12 horas, é INCORRETO afirmar que
Provas
Caderno Container